Mike and Gay Franckowiak Home
Beaver Island Michigan

Proposed Addition & Remodel - 11/08/2001

[Home] [Latest Drawings] [Animations] [Floor Plans] [Elevations] [Model]

 

[Walkout Basement] [First Floor] [Second Floor]

 

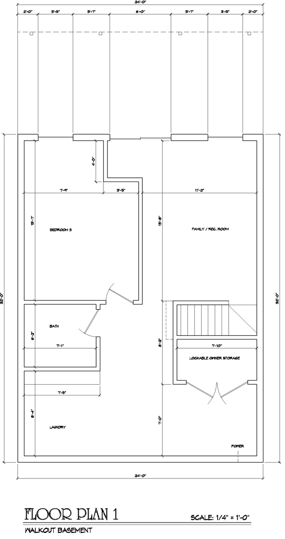
  • Family / Recreation Room created from existing walk-out basement space.  Window added to better take advantage of the view on this level.
  • Stairway enclosed
  • Lockable storage closet added.
  • [Home] [Latest Drawings] [Animations] [Floor Plans] [Elevations] [Model]

     

    [Walkout Basement] [First Floor] [Second Floor]